top of page
CASA DE LA NOCHE
Client
Julian James Reastaurants
Location
Albuquerque, NM
Year
Unbuilt
Size
3,140 SF
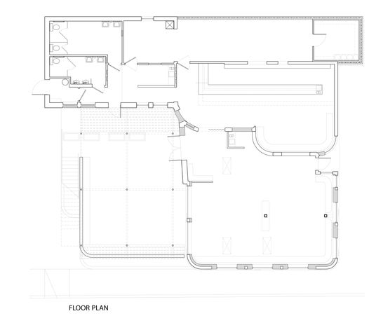
These renderings are of a new tapas and tequila bar in Albuquerque's Nob Hill neighborhood.
Process
Diagrams
Plans
Sections
Elevations
Renderings
bottom of page












